Anderhalf verdiepingen tellend huis met twee appartementen en aparte ingangen. Gezamenlijke technische ruimte met aparte externe toegang voor beide appartementen. Zadeldak met een dakhelling van 25°. Knieschothoogte: 1,75 m.
*Foto toont woning met individuele aanpassingen.
Huisstandaard Today
Volledige bouwbeschrijving en materiaalspecificatie..

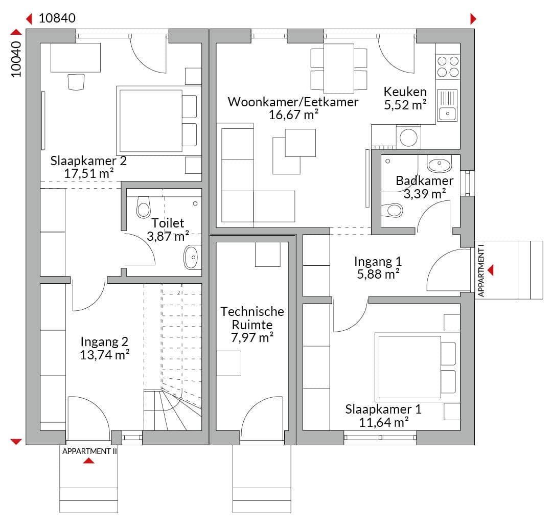
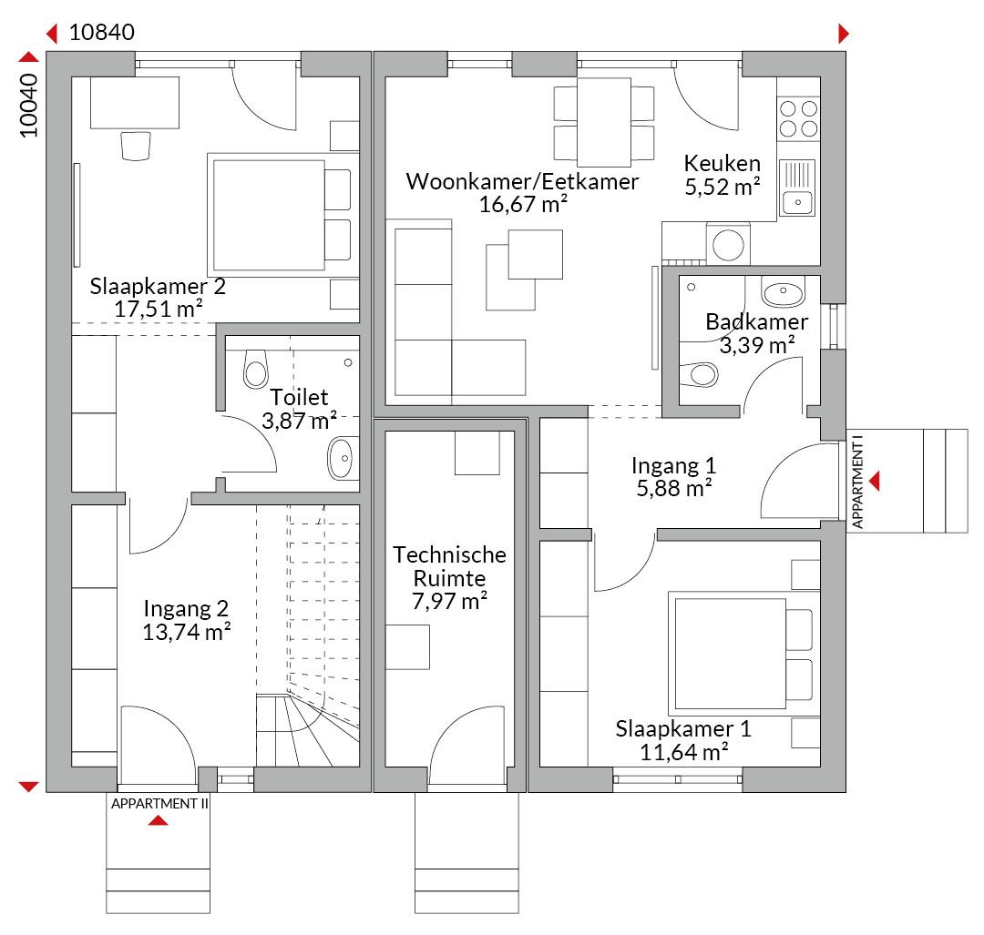
Plattegronden
Complete plattegronden van alle verdiepingen met oppervlaktes
Kies uit meer dan 140 direct instapklare woningontwerpen. Of je nu gaat voor een bungalow, een 1,5- of 2-verdiepingen tellende stadswoning, elke energiezuinige woning van Dan-Wood is volledig aan te passen aan jouw wensen. We hebben al 18.000 huizen gebouwd, een duidelijk bewijs van het vertrouwen van onze klanten in deze serie, die ook prefab garages en carports omvat.

Vrienden en familie vinden het een prachtig huis. We zijn heel dankbaar dat we zo’n mooi huis hebben om te delen met onze kleinkinderen en familie. Ja, dit is zonder twijfel ons huis voor altijd.