Prachtig wonen op de begane grond
Deze mooie bungalow biedt 220 vierkante meter wonen op één niveau, met kamerhoge ramen voor fantastisch daglicht en transparantie. De architectuur kenmerkt zich door grote gevelpanelen en een overdekt terras, wat zorgt voor een duidelijk en strak ontwerp.
*Foto toont woning met individuele aanpassingen.

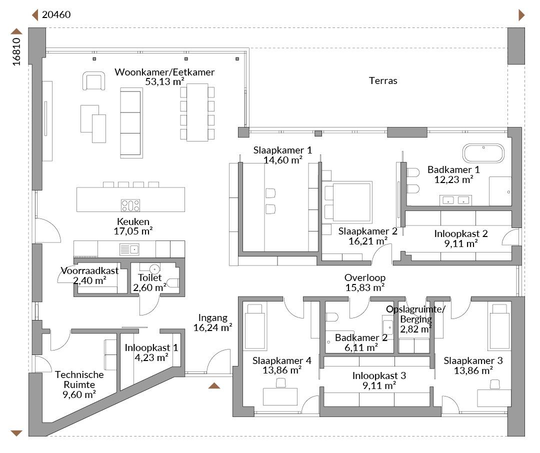
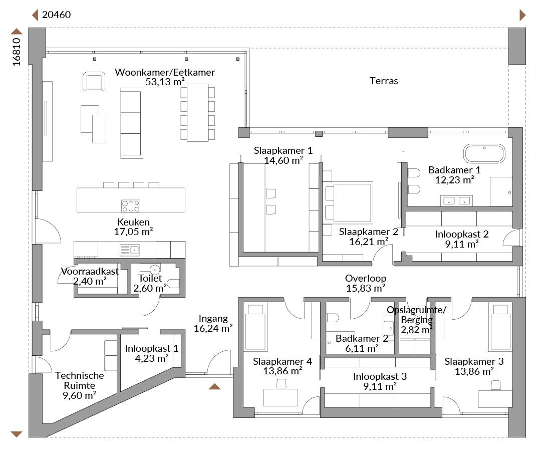
Plattegronden
Complete plattegronden van alle verdiepingen met oppervlaktes






Vrienden en familie vinden het een prachtig huis. We zijn heel dankbaar dat we zo’n mooi huis hebben om te delen met onze kleinkinderen en familie. Ja, dit is zonder twijfel ons huis voor altijd.