Moderne woning, geïnspireerd op de Nederlandse architectuur, ontworpen met het oog op een groot gezin en optimaal dagelijks wooncomfort. De karakteristieke, elegante gevel verwijst naar de typische bouwstijl van Nederland en combineert tijdloze esthetiek met functionaliteit.
De 2,5 verdiepingen zorgen voor een duidelijke indeling van de leefzones – de leefruimte nodigt uit om samen tijd door te brengen, terwijl maar liefst zes slaapkamers privacy bieden aan zowel bewoners als gasten.
*Foto toont woning met individuele aanpassingen.
Huisstandaard Today
Volledige bouwbeschrijving en materiaalspecificatie..

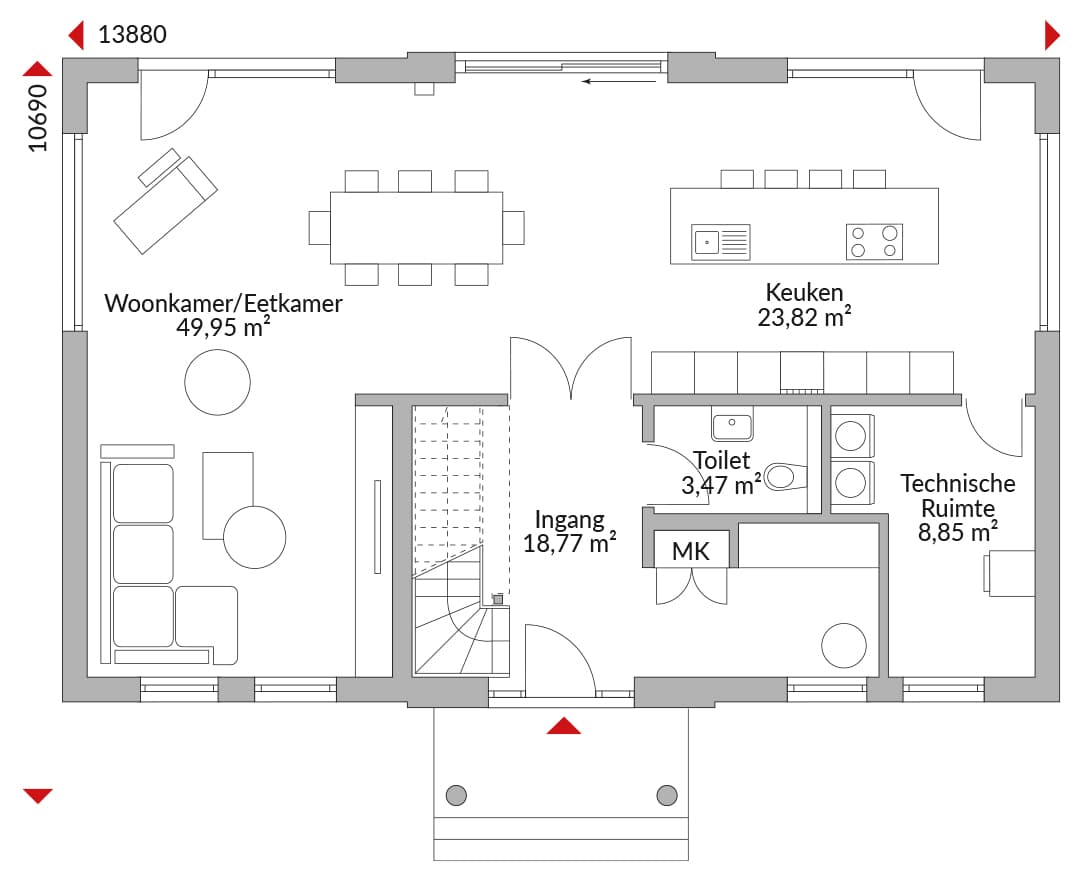
Plattegronden
Complete plattegronden van alle verdiepingen met oppervlaktes
Kies uit meer dan 140 direct instapklare woningontwerpen. Of je nu gaat voor een bungalow, een 1,5- of 2-verdiepingen tellende stadswoning, elke energiezuinige woning van Dan-Wood is volledig aan te passen aan jouw wensen. We hebben al 18.000 huizen gebouwd, een duidelijk bewijs van het vertrouwen van onze klanten in deze serie, die ook prefab garages en carports omvat.

Vrienden en familie vinden het een prachtig huis. We zijn heel dankbaar dat we zo’n mooi huis hebben om te delen met onze kleinkinderen en familie. Ja, dit is zonder twijfel ons huis voor altijd.