Minimalisme ontmoet luxe
Vision 172 NL belichaamt verfijnde architectuur. Strakke lijnen, een zadeldak en royale glaspartijen vormen een naadloos geheel dat pure elegantie uitstraalt. Ontworpen voor wie waarde hecht aan stijl en comfort, maakt deze woning van eenvoud een premium woonervaring.
*Foto toont woning met individuele aanpassingen.

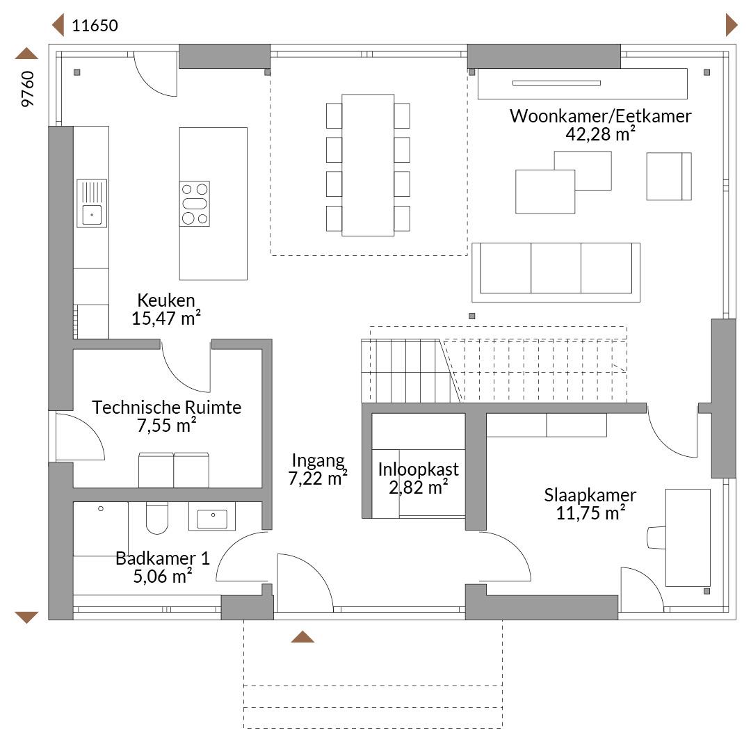
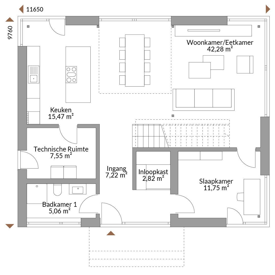
Plattegronden
Complete plattegronden van alle verdiepingen met oppervlaktes






Vrienden en familie vinden het een prachtig huis. We zijn heel dankbaar dat we zo’n mooi huis hebben om te delen met onze kleinkinderen en familie. Ja, dit is zonder twijfel ons huis voor altijd.