Is er een UFO geland? Deze uitvoering is opgebouwd uit S-modules met twee zijvleugels en doet nog het meest denken aan een UFO! De drie slaapkamers bieden voldoende comfortabel woonruimte voor een groter gezin van zes personen, terwijl twee gasten op de slaapbank kunnen overnachten. Elke slaapkamer beschikt over een volledig glazen wand, wat het interieur ruimer doet aanvoelen én de natuur dichterbij brengt. In deze compacte woning van 45 m² is ook ruimte voor een mini-keuken, een doucheruimte en een technische ruimte. Iedereen komt samen aan de eettafel in het hart van de woning, waar een grote schuifpui toegang geeft tot het terras.
*Foto toont woning met individuele aanpassingen.

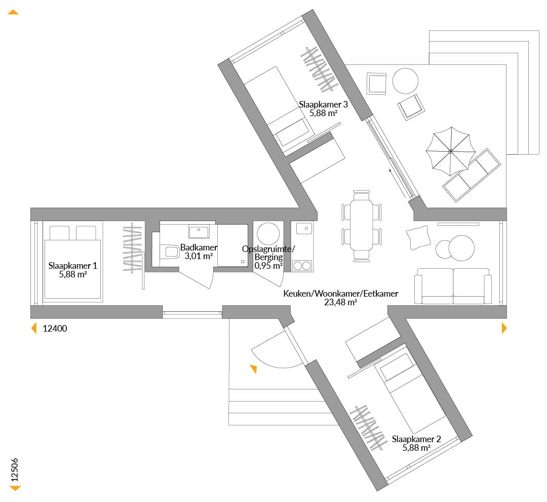
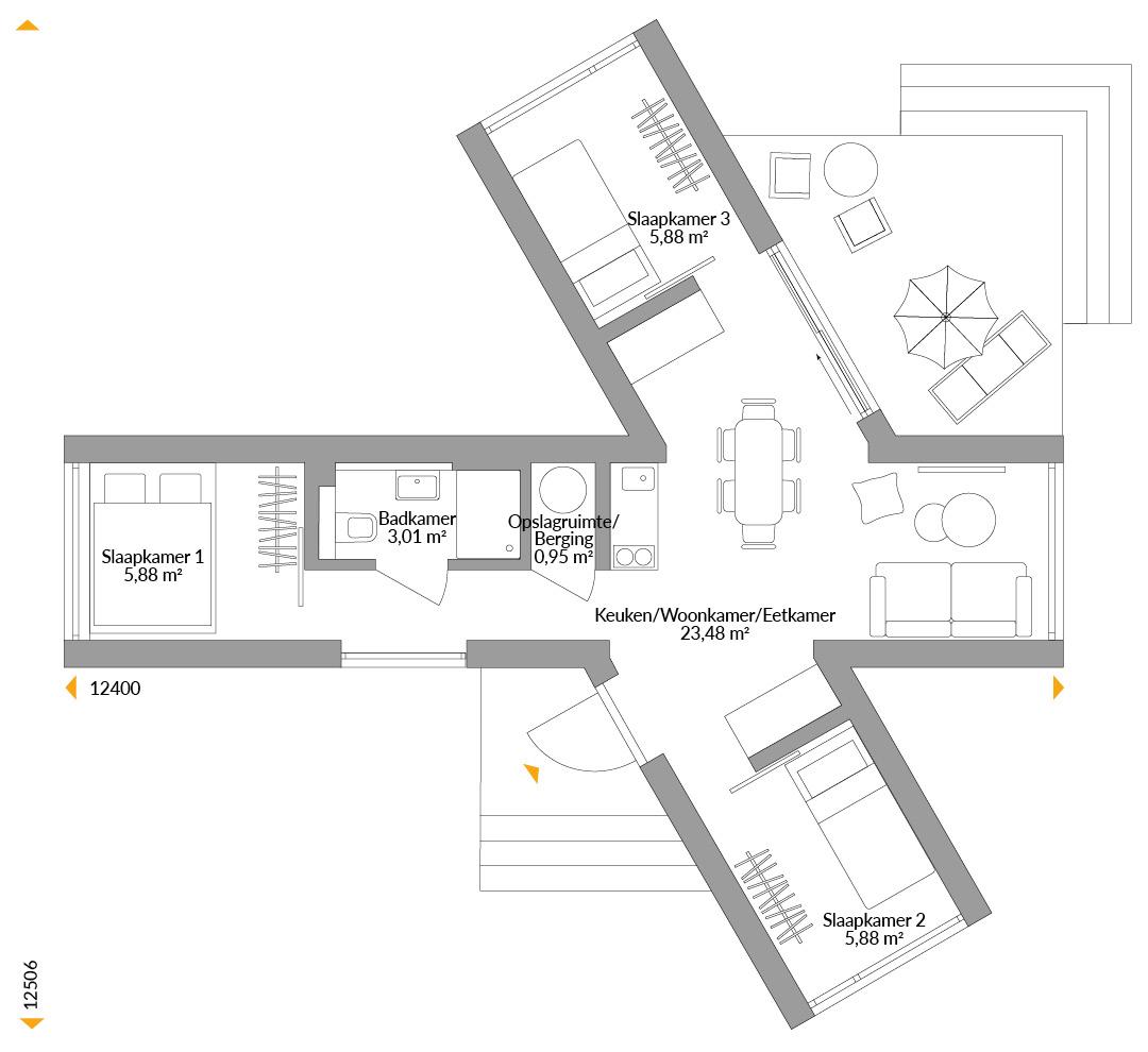
Plattegronden
Complete plattegronden van alle verdiepingen met oppervlaktes






Vrienden en familie vinden het een prachtig huis. We zijn heel dankbaar dat we zo’n mooi huis hebben om te delen met onze kleinkinderen en familie. Ja, dit is zonder twijfel ons huis voor altijd.