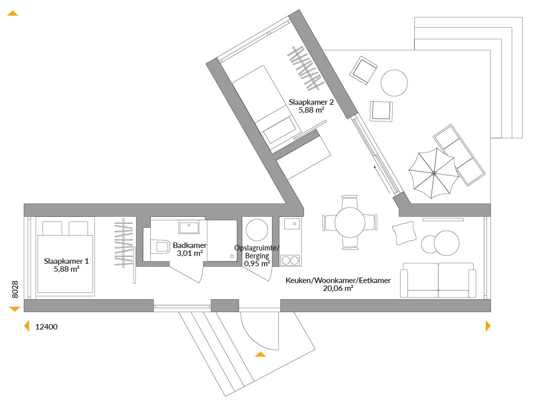
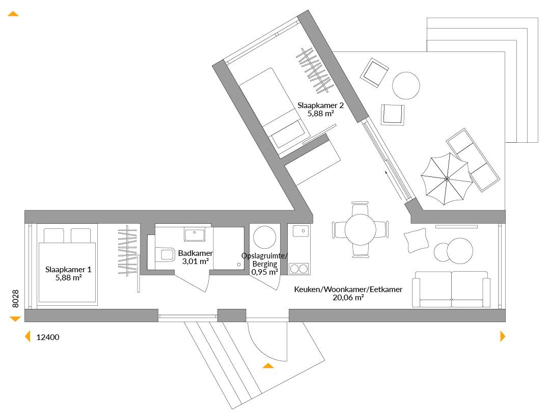
Smal en toch ruim: deze elegante NEXT Holiday woning met natuurlijk gekleurde gevelbekleding van leien is bijna 36 m² groot. Ze is opgebouwd uit smalle S-modules, maar dankzij de aangebouwde zijvleugel is er toch plaats voor een tweede slaapkamer. Die vleugel zorgt bovendien voor extra ruimte in de leefzone tussen de twee modules, en is ideaal voor gezellige familiemomenten. Grote, glazen ramen bieden prachtig uitzicht in alle vier windrichtingen, terwijl een beschut terras extra buitenruimte toevoegt aan het woongenot.
*Foto toont woning met individuele aanpassingen.

Plattegronden
Complete plattegronden van alle verdiepingen met oppervlaktes






Vrienden en familie vinden het een prachtig huis. We zijn heel dankbaar dat we zo’n mooi huis hebben om te delen met onze kleinkinderen en familie. Ja, dit is zonder twijfel ons huis voor altijd.