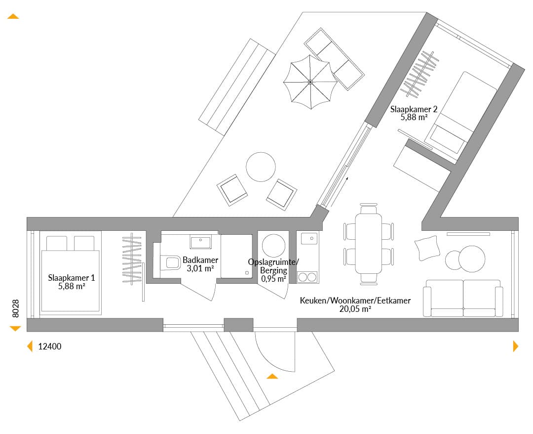
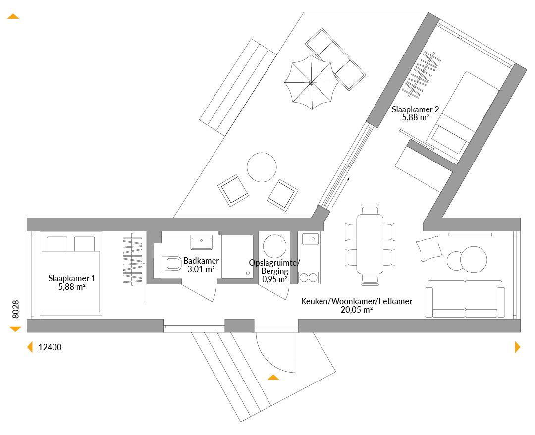
Groter gezelschap? Het mooie van modulaire woningen is dat je extra kamers kunt toevoegen als dat nodig is – bijvoorbeeld een tweede slaapkamer en een grote kledingkast – want met vier personen, of zelfs maximaal zes, heb je nu eenmaal wat meer leef- en opbergruimte nodig. En ondanks de smalle S-modules is er nog steeds ruimte voor een grote tafel waar je samen kunt eten en spelletjes spelen. De toevoeging van de zijvleugel zorgt bovendien voor een windbeschut terras - een vaste plek, net zo comfortabel als een serre.
*Foto toont woning met individuele aanpassingen.

Plattegronden
Complete plattegronden van alle verdiepingen met oppervlaktes






Vrienden en familie vinden het een prachtig huis. We zijn heel dankbaar dat we zo’n mooi huis hebben om te delen met onze kleinkinderen en familie. Ja, dit is zonder twijfel ons huis voor altijd.