Een miniwoning met groots genot. Word vroeg in de ochtend wakker met de vogels, loop blootsvoets door de dauw en zie de eerste zonnestralen van de zonsopgang. Na een frisse duik in het meer geniet je van je eerste kop koffie van de dag. Nog even wegkruipen in bed, tot het ontbijt op het zonnige terras lonkt. Klinkt dat goed? Onze éénslaapkamer mini-vakantiewoning is de perfecte uitvalsbasis. Klein genoeg om nauwelijks onderhoud te vragen, maar groot genoeg om heerlijk tot rust te komen. De compacte kitchenette heeft alles wat je nodig hebt, de comfortabele doucheruimte laat niets te wensen over, en drie panoramische glaswanden bieden een prachtig uitzicht.
*Foto toont woning met individuele aanpassingen.

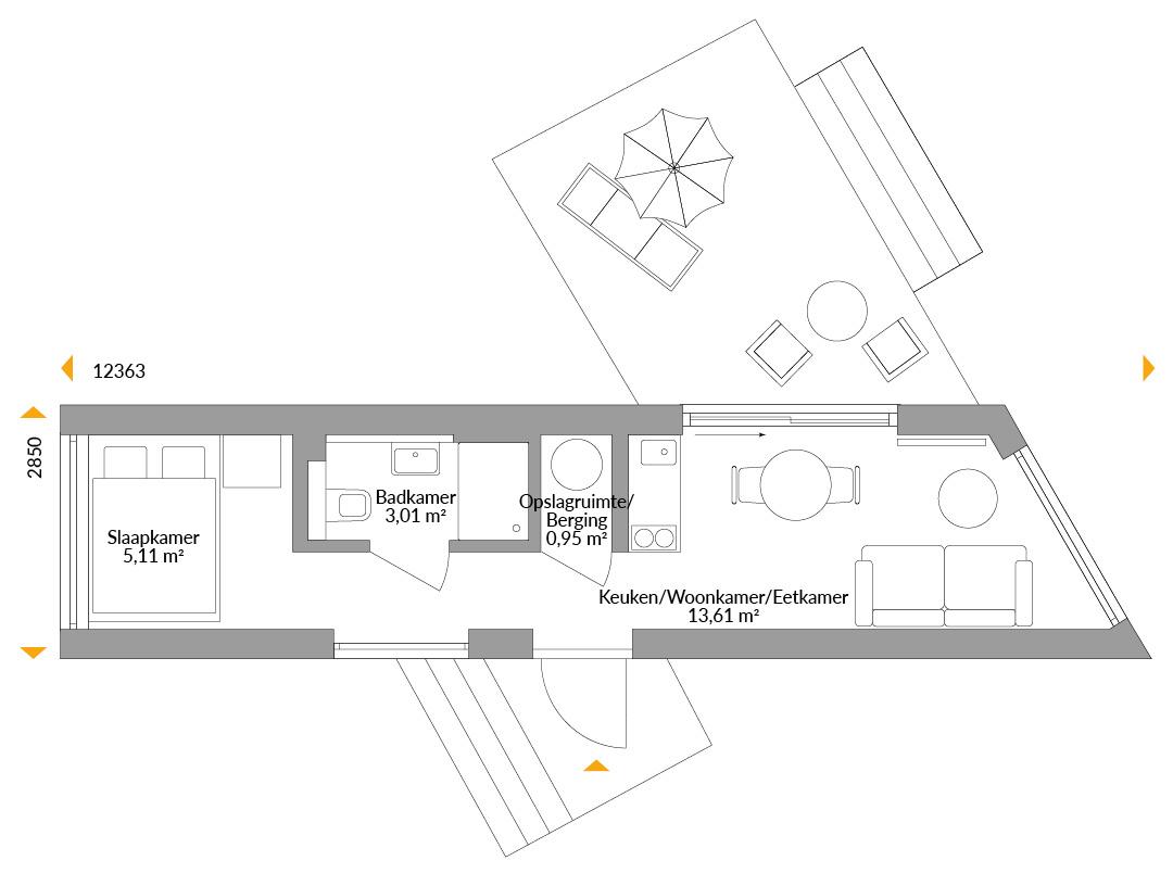
Plattegronden
Complete plattegronden van alle verdiepingen met oppervlaktes






Vrienden en familie vinden het een prachtig huis. We zijn heel dankbaar dat we zo’n mooi huis hebben om te delen met onze kleinkinderen en familie. Ja, dit is zonder twijfel ons huis voor altijd.