Luxe bungalow
Een ruime bungalow in loftstijl met bijna de helft van de wanden van glas - dat is pure luxe! Een prachtige combinatie van een ruimtelijk interieur, terwijl je toch dicht bij de natuur woont. De entree verwelkomt je met een royale hal, waar een nis is met een gastentoilet en een plek om jassen, laarzen en schoenen op te bergen.
*Foto toont woning met individuele aanpassingen.

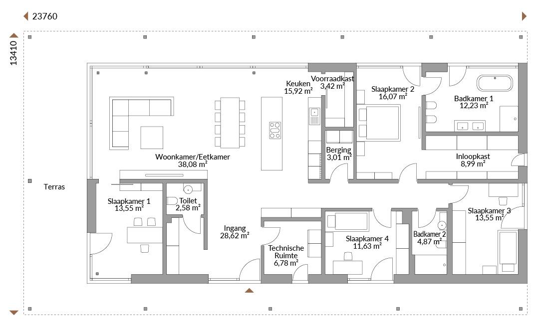
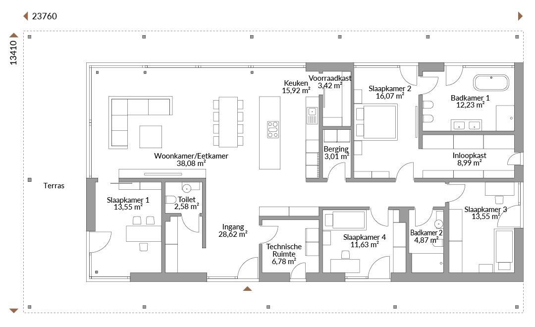
Plattegronden
Complete plattegronden van alle verdiepingen met oppervlaktes






Vrienden en familie vinden het een prachtig huis. We zijn heel dankbaar dat we zo’n mooi huis hebben om te delen met onze kleinkinderen en familie. Ja, dit is zonder twijfel ons huis voor altijd.