Minimalistische elegantie
Paradijs op één niveau: compact en ruim, transparant en privé, traditioneel en modern. En zeker een blikvanger.
*Foto toont woning met individuele aanpassingen.

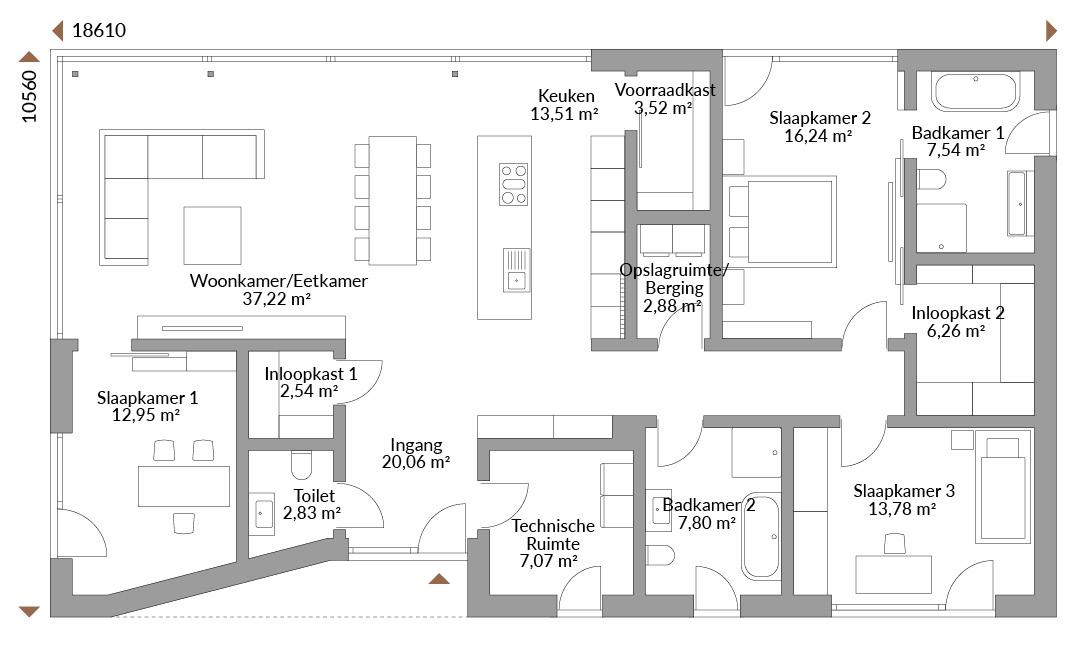
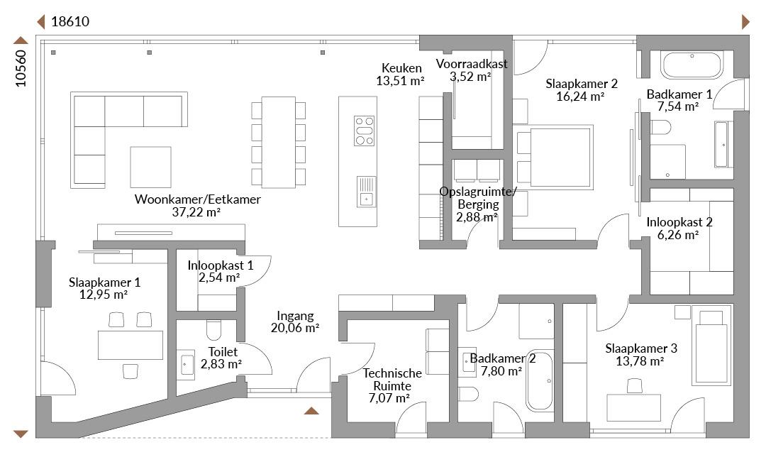
Plattegronden
Complete plattegronden van alle verdiepingen met oppervlaktes






Vrienden en familie vinden het een prachtig huis. We zijn heel dankbaar dat we zo’n mooi huis hebben om te delen met onze kleinkinderen en familie. Ja, dit is zonder twijfel ons huis voor altijd.