Bungalow met een verzonken entree die beschutting biedt aan de verhoogde voordeur; aan de tuinzijde bevindt zich een overdekt terras dankzij een dakoverstek; de verhoogde begane grond bij het eetgedeelte, met hoge ramen, is vormgegeven als een open leefruimte met keuken, bijkeuken, woon- en eetgedeelte. Via schuifdeuren heb je directe toegang tot het terras en de tuin; daarnaast is er een aparte studio, ideaal als gastenverblijf of thuiskantoor; de woning beschikt over drie slaapkamers, waaronder een grote badkamer met en-suite badkamer en inloopgarderobe; alle slaapkamers hebben toegang tot de buitenruimte; een extra doucheruimte, een apart gastentoilet; een technische ruimte; een hal en een gang.
*Foto toont woning met individuele aanpassingen.

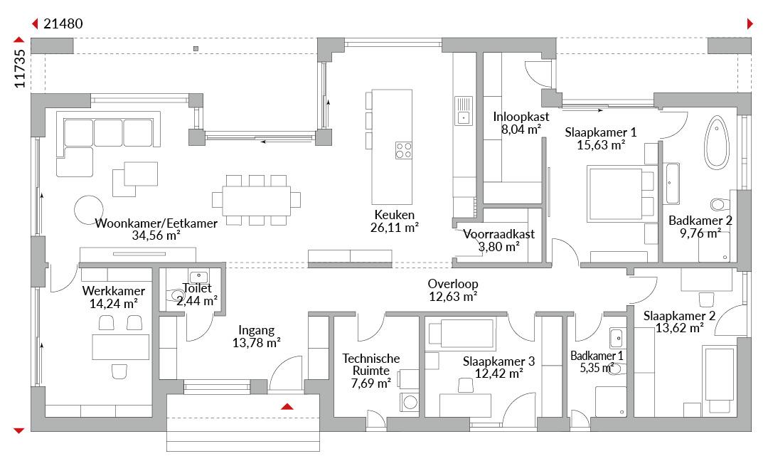
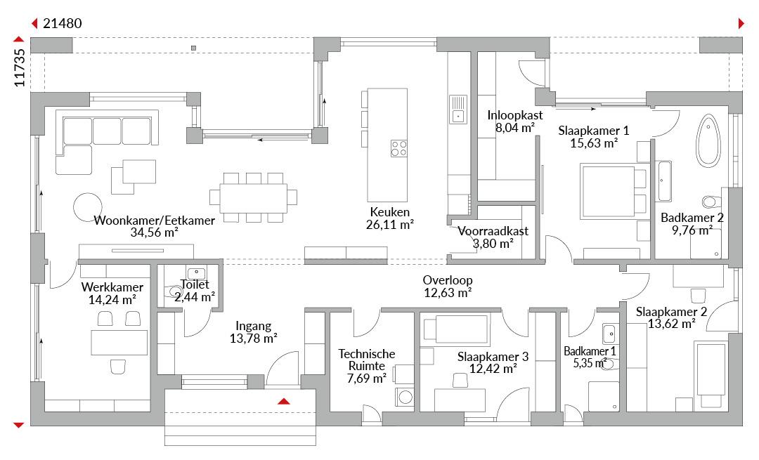
Plattegronden
Complete plattegronden van alle verdiepingen met oppervlaktes





Welkom bij S-Line van Danwood - het volgende niveau in kwaliteit en zelfbouwdesign. Deze exclusieve lijn onderscheidt zich niet alleen door haar unieke architectuur, maar ook door een doordacht functioneel ontwerp dat comfort en gebruiksgemak biedt in elke ruimte. Elke woning binnen de S-Line wordt gekenmerkt door een aantal bijzondere elementen die zorgen voor een luxueuze woonervaring.

Vrienden en familie vinden het een prachtig huis. We zijn heel dankbaar dat we zo’n mooi huis hebben om te delen met onze kleinkinderen en familie. Ja, dit is zonder twijfel ons huis voor altijd.