Bungalow met drie slaapkamers, een volledig overdekte entree en een verhoogde voordeur met glaspaneel. Extra externe toegang tot de keuken. Verhoogde begane grond met grotere ramen, ontworpen als een open keuken met aangrenzende woon-/eetruimte en schuifdeuren naar het terras. Schilddak zonder overstek, dakhelling van 25°.
*Foto toont woning met individuele aanpassingen.

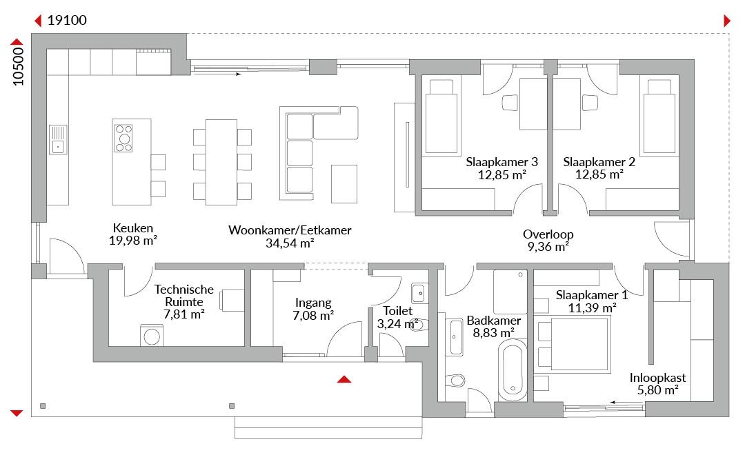
Plattegronden
Complete plattegronden van alle verdiepingen met oppervlaktes
Welkom bij S-Line van Danwood - het volgende niveau in kwaliteit en zelfbouwdesign. Deze exclusieve lijn onderscheidt zich niet alleen door haar unieke architectuur, maar ook door een doordacht functioneel ontwerp dat comfort en gebruiksgemak biedt in elke ruimte. Elke woning binnen de S-Line wordt gekenmerkt door een aantal bijzondere elementen die zorgen voor een luxueuze woonervaring.

Vrienden en familie vinden het een prachtig huis. We zijn heel dankbaar dat we zo’n mooi huis hebben om te delen met onze kleinkinderen en familie. Ja, dit is zonder twijfel ons huis voor altijd.