Overspoeld met licht en dicht bij de natuur
Dankzij de vele glaspartijen in de bekroonde Vision 195 NL kun je vanuit je bed naar de sterren kijken, glimlachen naar de ochtendzon aan het ontbijteiland en genieten van een onbelemmerd uitzicht aan de eettafel. Licht en zon komen van alle kanten, waardoor elke ruimte helder en uitnodigend is.
*Foto toont woning met individuele aanpassingen

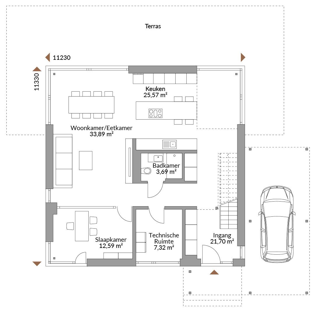
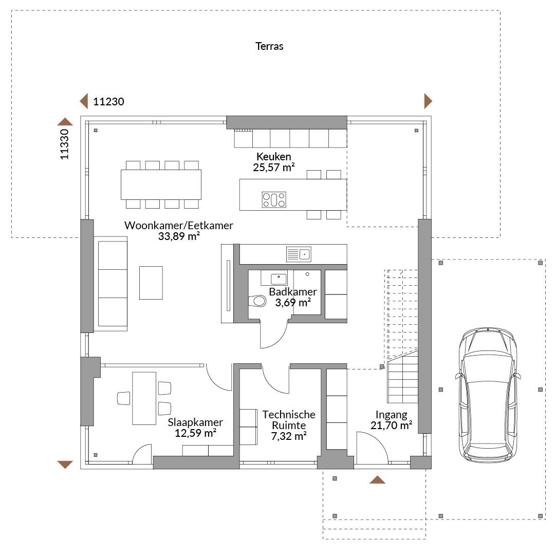
Plattegronden
Complete plattegronden van alle verdiepingen met oppervlaktes

Vrienden en familie vinden het een prachtig huis. We zijn heel dankbaar dat we zo’n mooi huis hebben om te delen met onze kleinkinderen en familie. Ja, dit is zonder twijfel ons huis voor altijd.