Twee verdiepingen tellend huis met entreeoverkapping boven de verhoogde voordeur; drie slaapkamers op de bovenverdieping. Hoofdslaapkamer met inloopkast en directe toegang tot badkamer met ligbad, dubbele wastafelmeubel en douche. Verhoogde begane grond met hoekbeglazing en grotere ramen, ontworpen als een open keuken met hoekraam en woon-/eetruimte met schuifdeuren naar het terras. Gastentoilet, technische ruimte, entreehal en gang. Schilddak met brede dakoverstekken (60 cm), dakhelling van 22°.
*Foto toont woning met individuele aanpassingen.

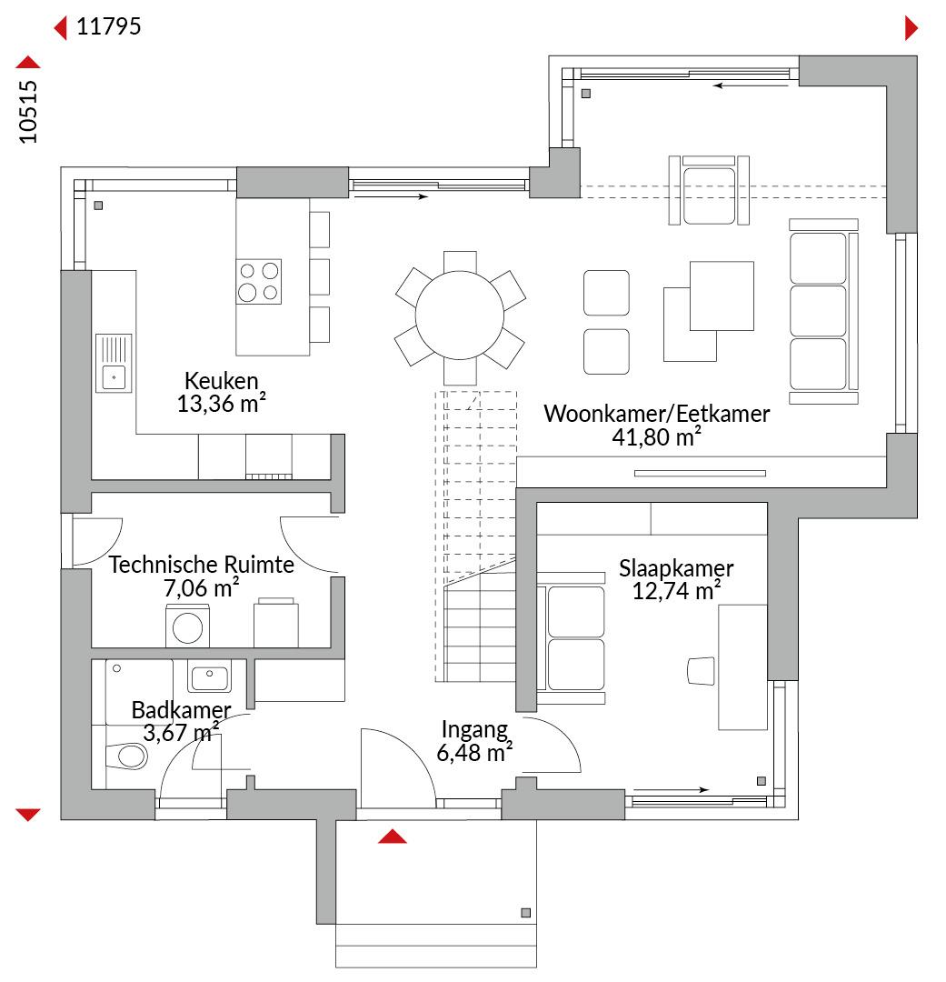
Plattegronden
Complete plattegronden van alle verdiepingen met oppervlaktes
Welkom bij S-Line van Danwood - het volgende niveau in kwaliteit en zelfbouwdesign. Deze exclusieve lijn onderscheidt zich niet alleen door haar unieke architectuur, maar ook door een doordacht functioneel ontwerp dat comfort en gebruiksgemak biedt in elke ruimte. Elke woning binnen de S-Line wordt gekenmerkt door een aantal bijzondere elementen die zorgen voor een luxueuze woonervaring.

Vrienden en familie vinden het een prachtig huis. We zijn heel dankbaar dat we zo’n mooi huis hebben om te delen met onze kleinkinderen en familie. Ja, dit is zonder twijfel ons huis voor altijd.