Anderhalf verdiepingen tellend huis met een entreeoverkapping boven de verhoogde voordeur; drie slaapkamers op de bovenverdieping; master bedroom met en-suite badkamer, inloopkast, dubbele wastafels, vrijstaand bad en douche; tweede badkamer op de bovenverdieping met douche; twee bergingen; vloerhoge beglazing in de gevelramen aan de tuinzijde; aparte studio op de begane grond. De verhoogde begane grond met vloerhoge beglazing is ontworpen als een open keuken/woon/eetruimte met schuifdeuren naar het terras; voorraadruimte; technische ruimte; gang met garderobe; gastentoilet met douche; knieschothoogte 150 cm; zadeldak met brede dakoverstekken van 60 cm aan de tuinzijde; dakhelling van 38°.
*Foto toont woning met individuele aanpassingen.

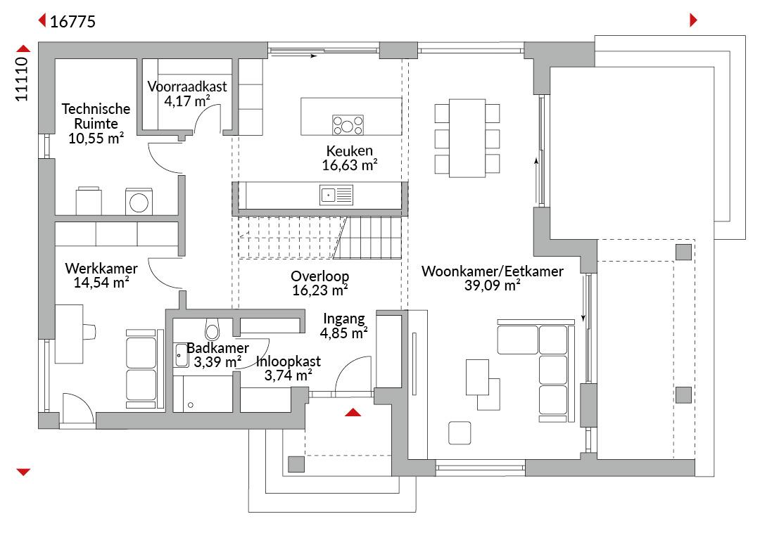
Plattegronden
Complete plattegronden van alle verdiepingen met oppervlaktes
Welkom bij S-Line van Danwood - het volgende niveau in kwaliteit en zelfbouwdesign. Deze exclusieve lijn onderscheidt zich niet alleen door haar unieke architectuur, maar ook door een doordacht functioneel ontwerp dat comfort en gebruiksgemak biedt in elke ruimte. Elke woning binnen de S-Line wordt gekenmerkt door een aantal bijzondere elementen die zorgen voor een luxueuze woonervaring.

Vrienden en familie vinden het een prachtig huis. We zijn heel dankbaar dat we zo’n mooi huis hebben om te delen met onze kleinkinderen en familie. Ja, dit is zonder twijfel ons huis voor altijd.