Anderhalf verdiepingen tellend huis met een entreeoverkapping boven de verhoogde voorgevel; entree met trap; open woon-/eetruimte met schuifdeuren naar het terras; keuken met kookeiland aan een wand (peninsula-opstelling); technische ruimte; eenpersoonskamer of studeerkamer met inloopkast en en-suite doucheruimte; hoofdslaapkamer op de bovenverdieping met inloopkast en en-suite badkamer met dubbele wastafel; twee eenpersoonskamers; familiebadkamer; zadeldak met een dakhelling van 38°; knieschothoogte: 1,75 meter.
*Foto toont woning met individuele aanpassingen.

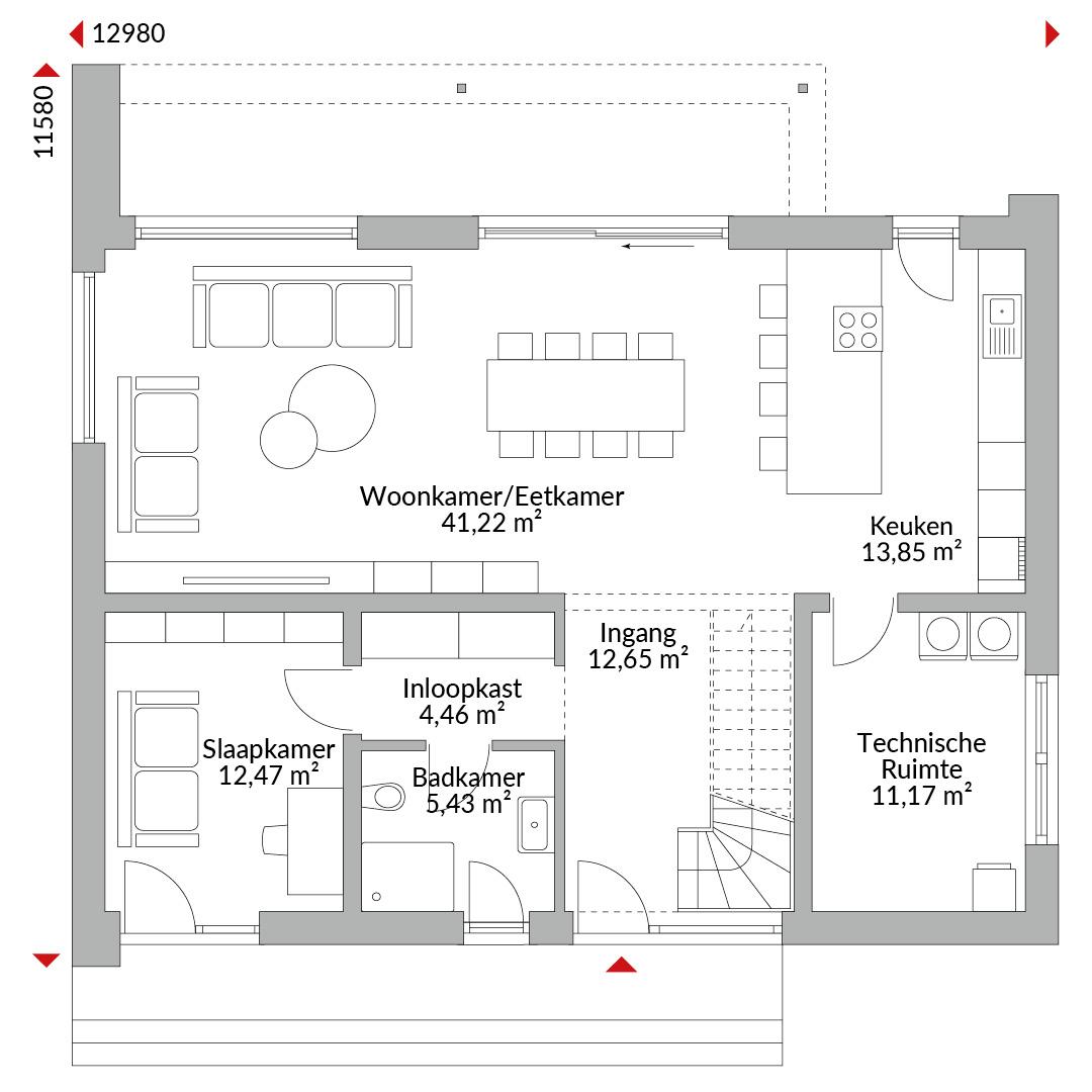
Plattegronden
Complete plattegronden van alle verdiepingen met oppervlaktes
Welkom bij S-Line van Danwood - het volgende niveau in kwaliteit en zelfbouwdesign. Deze exclusieve lijn onderscheidt zich niet alleen door haar unieke architectuur, maar ook door een doordacht functioneel ontwerp dat comfort en gebruiksgemak biedt in elke ruimte. Elke woning binnen de S-Line wordt gekenmerkt door een aantal bijzondere elementen die zorgen voor een luxueuze woonervaring.

Vrienden en familie vinden het een prachtig huis. We zijn heel dankbaar dat we zo’n mooi huis hebben om te delen met onze kleinkinderen en familie. Ja, dit is zonder twijfel ons huis voor altijd.