Anderhalf verdiepingen tellend huis met een overdekte entree boven een verhoogde voordeur. Verhoogde begane grond met grotere ramen in de eethoek, ontworpen als een open keuken die verbonden is met de aangrenzende woon-/eetruimte, met hoekbeglazing in de eethoek en woonkamer, plus schuifdeuren naar het terras en de tuin. Aparte studeerkamer, geschikt voor gasten of als thuiskantoor, en een gastentoilet. Drie slaapkamers, waarvan twee met inloopkast. Één slaapkamer met en-suite badkamer en inloopkast. Extra doucheruimte en opslagruimte. Technische ruimte, entreehal en gang. Zadeldak met brede dakoverstekken (60 cm) en een dakhelling van 25°. Knieschothoogte: 2,00 m.
*Foto toont woning met individuele aanpassingen.

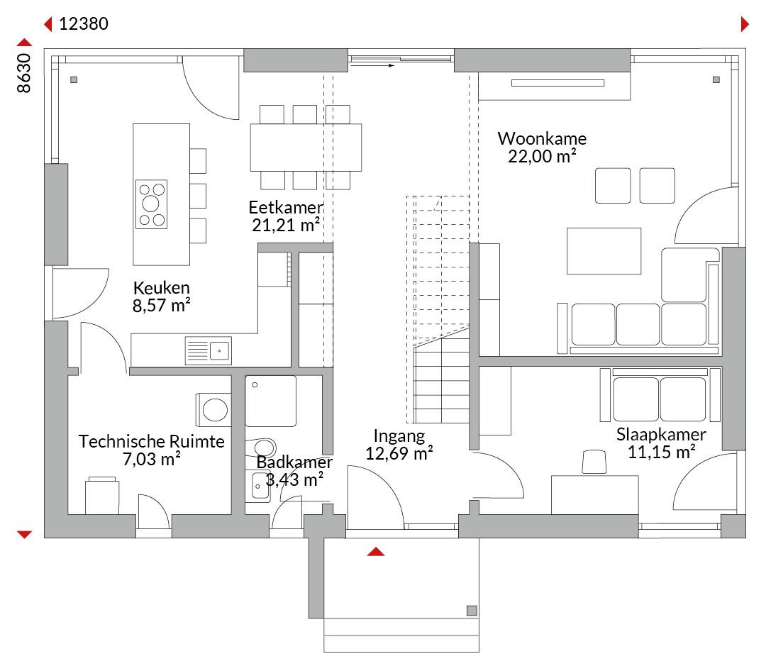
Plattegronden
Complete plattegronden van alle verdiepingen met oppervlaktes
Welkom bij S-Line van Danwood - het volgende niveau in kwaliteit en zelfbouwdesign. Deze exclusieve lijn onderscheidt zich niet alleen door haar unieke architectuur, maar ook door een doordacht functioneel ontwerp dat comfort en gebruiksgemak biedt in elke ruimte. Elke woning binnen de S-Line wordt gekenmerkt door een aantal bijzondere elementen die zorgen voor een luxueuze woonervaring.

Vrienden en familie vinden het een prachtig huis. We zijn heel dankbaar dat we zo’n mooi huis hebben om te delen met onze kleinkinderen en familie. Ja, dit is zonder twijfel ons huis voor altijd.