Anderhalf verdiepingen tellend huis met een overdekte entree boven een verhoogde voordeur. Gevelramen aan beide zijden boven. Knieschotramen boven. Verhoogde begane grond met grotere ramen in de eetkamer, ontworpen als een open keuken die verbonden is met de aangrenzende woon-/eetruimte, met hoekbeglazing in de eetkamer en schuifdeuren naar het terras en de tuin. Gescheiden studeerkamer, geschikt voor gasten of als thuiskantoor. Drie slaapkamers, waarvan één met en-suite badkamer en inloopkast. Extra doucheruimte en gastentoilet. Technische ruimte, entreehal en gang. Zadeldak met brede dakoverstekken (60 cm) en een dakhelling van 30°. Knieschothoogte: 1,75 m.
*Foto toont woning met individuele aanpassingen.

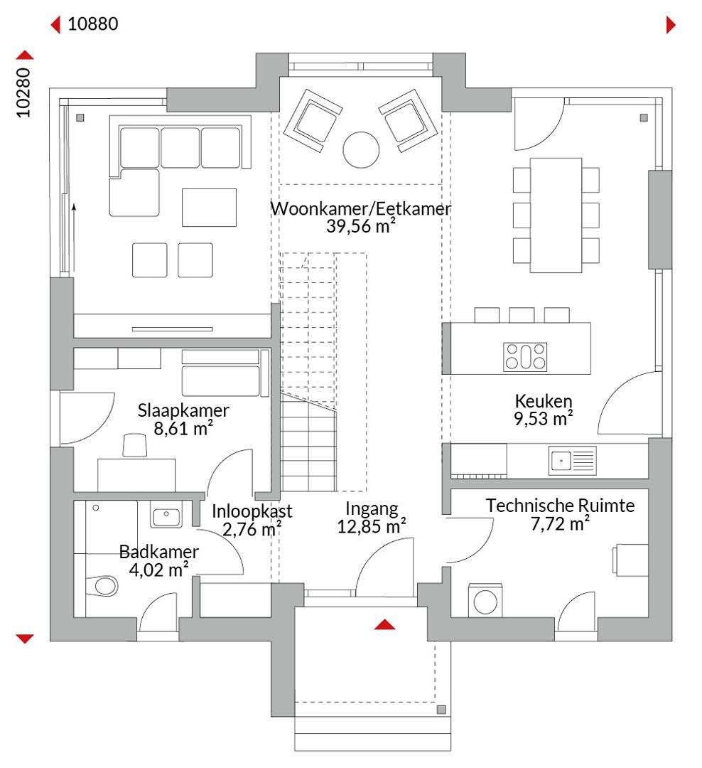
Plattegronden
Complete plattegronden van alle verdiepingen met oppervlaktes
Welkom bij S-Line van Danwood - het volgende niveau in kwaliteit en zelfbouwdesign. Deze exclusieve lijn onderscheidt zich niet alleen door haar unieke architectuur, maar ook door een doordacht functioneel ontwerp dat comfort en gebruiksgemak biedt in elke ruimte. Elke woning binnen de S-Line wordt gekenmerkt door een aantal bijzondere elementen die zorgen voor een luxueuze woonervaring.

Vrienden en familie vinden het een prachtig huis. We zijn heel dankbaar dat we zo’n mooi huis hebben om te delen met onze kleinkinderen en familie. Ja, dit is zonder twijfel ons huis voor altijd.